Forfatter
Jens Th. Uldall
Museumsinspektør
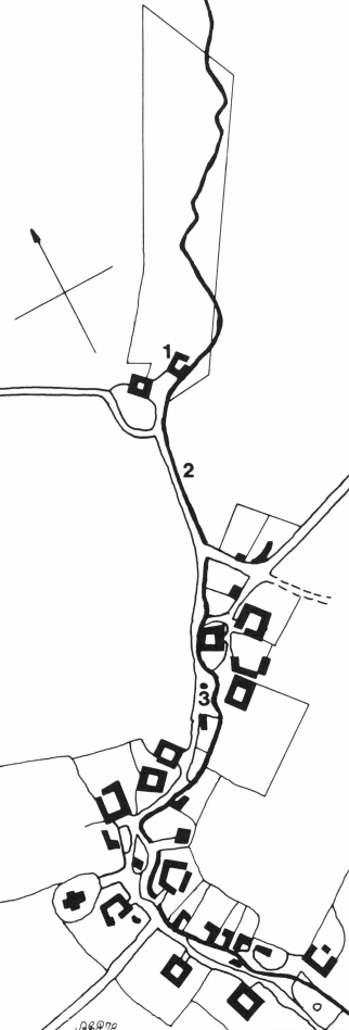
Vejrup å, der har sit udspring i Kildemosen umiddelbart syd for Davinde by, leverede i ældre tid vandkraft til fire nu nedlagte møller: Davinde vandmølle, Sanderumgaards mølle, Vejrupgaards mølle og Bullerup mølle. Kun Davinde mølle og møllegård er ved et heldigt tilfælde blevet bevaret, idet bygningerne i 1942 erhvervedes af Den fynske Landsby, hvortil de flyttedes og genrejstes samme år, i øvrigt som de første i det nye landbygningsmuseum.
Davinde vandmølle nævnes så tidligt som i 1585, hvor Margrethe Skovgaard, ejer af den lille herregård Sanderumgaard i Davinde sogn, efter nogen forhandling med kongen ved mageskifte forlenedes med 11 gårde, 2 gadehuse og 1 mølle i Davinde.[1] – Sanderumgaard, som lå mindre end 2 km fra Davinde by, havde sin egen mølle, og der må tidligt have foreligget bestemmelser om, hvilken af de 2 møller, beboerne i Davinde skulle søge, for i 1642 behandledes en sag ved Åsum herredsting,[2] hvor 9 gårdmænd i Davinde advaredes og befaledes at søge Sanderumgaards mølle, mens 3 gårdmænd og alle husmændene sammesteds skulle søge Davinde mølle; og såfremt de 2 møllere malede for nogen, der ikke var dem tilskrevne, måtte de bøde en okse til ejeren af Sanderumgaard, og omvendt måtte de møllekunder, som ikke holdt sig til det foreskrevne, betale med 1 pund havre ligeledes til ejeren af Sanderumgaard og en skæppe rug til den møller, de trods forskriften havde undladt at besøge.

Hans Møller, som havde Davinde mølle i 1642, er den første fæster, hvis navn vi kender. 1664 og 1688 matriklerne nævner henholdsvis Henrik Møller og Jep Hansen. Sidstnævnte efterfulgtes af Hans Hansen,[3] som i 1735 afstod fæstemøllen til Peter Brochmann, og møllens hartkorn angaves da til 2 fjd. jordskyld og 5 skæpper mølleskyld, men Peter Brochmann fik desuden rådighed over en øde grund på 1 td., som dog måtte afstås igen i 1767.[4] Sammenlignet med Sanderumgaards mølle, skyldsat for 3 td. hartkorn, var Davinde vandmølle kun lille, og det vides, »at man kunne komme en tønde sæd i kværnen og tage til Odense, og når man så kom hjem, var sæden endda ikke malet«.[5] Intet tyder imidlertid på, at Peter Brochmann led af næringssorger. Tværtimod blev han efterhånden en holden mand, og da han nåede støvets år, besluttede han, i taknemmelighed over de utallige velsignelser og velgerninger, som Gud havde ladet ham vederfare livet igennem, at fuldføre det, som i så mange år havde været hans faste bestemmelse, nemlig at legere en kapital på 125 rigsdaler af hvis rente, der hvert år til jul og påske skulle uddeles en portion til 5 nødlidende fattige i Davinde sogn, dog med det forbehold, at legatmodtagerne ikke måtte have levet »et liderligt og forargeligt liv og levned til den store Guds fortørnelse«.[6]
I 1767 steder og fæster generalmajor Mathias Leth til Sanderumgaard Davinde vandmølle til Peter Brochmanns 40-årige søn, Jacob Brochmann.
Overtagelsen af møllen kunne imidlertid – jvf. fæstebrevet – først finde sted ved faderens død, eller hvis denne godvilligt ville afstå fæstet.[7] – Hvornår faderen besluttede sig til at trække sig tilbage er uvist; men derimod vides det med sikkerhed, at han i sine sidste år nød ophold i møllen som aftægtsmand, og at han havde en tjenestepige til sin opvartning.[8]
Peter Brochmann afgik ved døden i 1789 treogfirs år gammel, og ved sin død efterlod han sig værdier for i alt 1051 rigsdaler til deling mellem arvingerne. Fra dette beløb fragik en udgift på 2 rigsdaler og 4 mark til tjenestepigen, der fordrede ½ års løn, som hun havde tilgode for sommeren, samt udgifter til begravelsen på godt 34 rigsdaler.[9]
Jacob Brochmann var nu 64 år, og i sit ægteskab med den 23 år yngre Anne Andersdatter havde han 4 børn, hvoraf den ældste, datteren Marie Cathrine, den 14 . maj 1800 blev gift med selvejergårdmand Anders Hansen i Hudevad. Ved den lejlighed blev der på møllegården holdt stort bryllup med deltagelse af 100 personer, og bruden fik som medgift 300 rigsdaler kontant og desuden nogle gode møbler, en malkeko, et får med to lam samt en hestevogn. Medgiften sammenholdt med en betydelig arvepart, som senere kom til udbetaling,[10] synes at bekræfte den gamle påstand om, at mølleren var en holden mand og hans datter et godt parti.
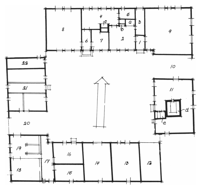
Toldkornet, d.v.s. den del af kornet, som mølleren efter fastsatte regler måtte tage af hver skæppe, der formaledes, dannede det væsentligste grundlag for Davindemøllerens velstand. Derimod kunne landbruget, der hørte til møllen, næppe give afkast af betydning. Tilliggendet var fra gammel tid på kun 2 fjd. ager og engs hartkorn, men desuden havde Jacob Brochmann, jævnfør sit fæstebrev, faet brugsret til 4 skæpper pløjeland i nabogårdens 3 marker. I forbindelse med udskiftningen i 1795 blev jorden imidlertid samlet under matrikel nr. 15 af Davinde by, og arealet udgjorde nu omkring 10 tønder land geometrisk. Besætningen var omkring år 1800 på< 2 heste, 2 køer, 2 får og 1 væder, 11 høns og 1 gris. Af avlsredskaber kan nævnes 2 vogne, 1 jernplov, 1 harve, 1 trætromle og 2 slæder.[10] Skønt Davindemøllen således i landbrugsmæssig henseende nærmest måtte betegnes som et husmandssted, var møllegårdens bygninger dog af anselig størrelse.[11] Den 4-længede gård bestod af et stuehus i øster med 2 stuer, 2 kældre, bryghus og møllehus; en søndre bygning med vognport, karlekammer, fårehus og tørvehus; en vestre bygning med rullestue og en nordre med lo, lade og stalde.
Efter Jacob Brochmanns død i 1803 fortsatte enken Anne Andersdatter driften af fæstemøllen, indtil hun i 1823 afstod fæstet til Johan Petersen,[12] søn af gårdmand Peter Corneliussen i Davinde og bror til politikeren Cornelius Petersen, mest kendt som medlem af den grundlovgivende rigsforsamling. Johan Petersen havde i øvrigt hjulpet til i møllen længe før den formelle overtagelse fandt sted. Han forelskede sig snart i enkens datterdatter, Karen Andersdatter fra Hudevad, som var tjenestepige hos mormoderen. Det unge par giftede sig i 1820,[13] og det ser ud til, at enken allerede da måtte føre en mere tilbagetrukket tilværelse som aftægtsenke.
Af Johan Petersens fæstebrev fremgår det, at møllens tilliggende var som forhen, og at der i landgilde årligt skulle svares 1 skæppe rug, 4½ skæppe byg, 2 3/4 skæppe havre og i penge godt 8 rigsdaler i sølv samt i småredsel 1 gås, 2 høns og 40 æg. Johan Petersen var dog, så længe aftægtsenken levede, fritaget for at levere småredsel.
Efter gehejmekonferensråd Johan Bülows død i 1828 overtog kammerjunker Christian Andreas Vind Sanderumgaard ved en auktion, men for at kunne udrede købesummen måtte han sælge en del af bøndergodset.[14] I Davinde blev byens 12 gårde og vandmøllen således udbudt til salg i 1829, og Johan Petersen købte fæstemøllen for 800 rigsdaler sølv, hvilket var noget under halvdelen af den pris, de fleste gårde blev solgt til.[15]
Som selvejer og med udsigt til gode kår for møllenæringen gik Johan Petersen straks igang med en større ombygning af den gamle møllegård. I syd – på det sted, hvor længen med karlekammer, fårehus og tørvehus lå – opførtes et helt nyt to-etagers møllehus, som stod færdigt i 1832.[16] Mølleværket var indrettet med rugkværn, grynkværn og skalkværn samt sigte-kværn med tilbehør af støvkar, spilledrev og hollandsk sigtekasse. Hele værket blev drevet af et 6 alens overfaldshjul. – I forlængelse af møllehuset opførtes dernæst et nyt stuehus,[17] ligeledes i to etager, til afløsning for det gamle i østlængen. Bygningen bestod af egebindingsværk med murede tavl af brændte sten, og stueetagen, som i nordsiden lå i niveau med gårdspladsen, rummede en storstue og en dagligstue samt gæstekammer, køkken, spisekammer, pigekammer og forstue. Kælderetagen, 16 alen i længden og 12 alen i dybden, var indrettet til bryggers, ølkammer og pakhus.

Efter at have fuldført dette imponerende byggearbejde fortsatte Johan Petersen med yderligere ombygninger og forbedringer af møllen.[18] Det kan derfor virke ejendommeligt, at han i 1845, endnu medens arbejdet stod på, pludselig solgte møllen til gårdmand Søren Jørgensen fra Vejstrup.[19] Johan Petersen var på det tidspunkt i sin bedste alder, kun 48 år gammel, og af en stor børneflok var 3 voksne sønner hjemmeboende.
Der kan være flere grunde til, at han så hovedkulds forlader jord og ejendom, men det har nok vejet tungt, at der året i forvejen var opstået en alvorlig strid mellem mølleren og gårdmand Anders Hansen i Davinde. Sidstnævnte var af Johan Petersen blevet beskyldt for uberettiget at have afledet vand fra møllebækken ind i sin tilstødende have, uden at det afledede vand kunne komme tilbage til bækken igen og således havde skadet møllens drift. Da gårdmanden afviste beskyldningen, og en efterfølgende syns- og skønsforretning ikke var til gunst for Johan Petersen, indklagede denne i januar 1845[20] Anders Hansen for Bjerge-Åsum Herredsret. I den afsagte dom fik mølleren medhold, og den indklagede dømtes til at betale 3 lod sølv til Odense Amts Fattigkasse. Da Anders Hansen forgæves havde søgt at få dommen omstødt, indankede han sagen for Den kongelige Lands-overret i København, som i en ny kendelse af 18. dec. s.å.[21] frifandt gårdmanden for tiltale under henvisning til § 8 i forordningen af 25. juni 1790.
Stridigheder mellem mølleejerne og de lodsejere, hvis arealer grænsede til åløbene, har uden tvivl været almindeligt forekommende overalt i landet, også selvom der, jvf. en anordning af 29. juli 1846, efterhånden blev udarbejdet meget detaljerede regulativer for de enkelte vandløb. I et regulativ for Vejrup å, vedtaget af Odense amtsråd i 1859,[22] er forhold omkring oprensning og vedligeholdelse nøje angivet. I særlige afsnit berøres vandmøllerne langs åen. Eksempelvis kan det i den forbindelse nævnes, at flodmålet ved Davinde mølle var bestemt til 27½ tomme over malekarmens bund, målt ved dens udløb, og at en nedrammet pæl, forsynet med en messingplade, mærket: Flodmaal, angav den højest tilladte vandstand.

Efter at have afhændet møllen flyttede Johan Petersen og hans hustru til Højby, hvor de nød ophold hos sønnen, møllebygger Jacob Johansen.[23]
Johan Petersen afgik ved døden i 1870, efter at han et års tid i forvejen havde mistet sin hustru. Den 20. dec. s.å. fremlagdes i skifteretten en arveanmeldelse,[24] hvorefter eneste og myndige arvinger på tro og love og under edstilbud erklærede, at arven efter afdøde og dennes hustru ikke oversteg en nettoværdi af 3000 rigsdaler.
Køberen af vandmøllen var som før nævnt gårdmand Søren Jørgensen. Af købekontrakten fremgår det, at jordtilliggendet i 1832 er forøget med en moseparcel, matr. nr. 31 p af Davinde, således at møllens samlede areal nu udgjorde 11 td. land geometrisk. Det bør i den forbindelse bemærkes, at dette jordtilliggende forblev uændret indtil 1939.[25] – Med ejendommen fulgte stuehus og øvrige tilhørende bygninger tilligemed tømmer til et hus, som endnu ikke var rejst. Besætning, inventar (dog bortset fra møllens værk), bohave og avlsredskaber indgik ikke i handelen, og købesummen var sat til 10.000 rigsbankdaler sølv.

Søren Jørgensen fortsatte ombygningen, hvor Johan Petersen slap, og med færdiggørelsen af vestlængen i 1859[26] fremtrådte den firlængede møllegård endelig, efter en byggeperiode på næsten 30 år, i en fuldstændig ændret skikkelse.
Søren Jørgensen drev møllen til sin død i 1865, hvorefter enken fortsatte driften, indtil møllen i 1872 overdroges til Ole Jensen Daugaard, som syv år senere solgte den videre til Otto Petersen fra Tangå mølle i Svindinge sogn for en salgssum på 27.000 kr.[27] Otto Petersen byggede i 1880’erne en vindmølle på en højning godt 30 meter fra nordlængens østre gavl. Underste etage og mølleloftet havde henholdsvis 9 alen og 2 alen som mindste diameter. Gulvfladen i de 2 etager udgjorde sammenlagt 108 kvadratalen,[28] og mølleskroget var beklædt med træspån og tjærepap. Uvist af hvilke årsager fik denne vindmølle kun en kort levetid. Den blev nedbrudt omkr. 1910, og ethvert spor af den er siden forsvundet; kun ældre mennesker i Davinde husker endnu den tid, hvor den var i funktion.[29]

Otto Petersens hustru, Anne Petersen f. Stokkebye, sad efter mandens død i uskiftet bo, og hun solgte både vand- og vindmølle til maskinbygger Niels Nielsen i Hudevad. Salgssummen var sat til 21.500 kr., hvilket var 5.500 kr. mindre end den i sin tid var købt for.[30]
Den lave salgspris skal måske ses som det første tegn på, at møllen var på vej ind i en nedgangsperiode. Hyppige ejerskift i årene indtil nedlæggelsen er med til at understrege denne tilbagegang. Fra disse år nævnes følgende ejere: Niels Nielsen (1892-1894), Knud Rasmussen (1894-1898), Hans Andreas Kromann (1898-1920), Albert M. Andersen (1920-1930), Niels Christian Sørensen (1930-1935), Peter Jensen (1935-1942).[31]
Forfatteren Achton Friis fortæller i sit værk »Danmarks store Øer« om et besøg, han omkr. midten af 1930’erne aflægger i Davinde vandmølle. Om mølleren – det må være Niels Christian Sørensen – beretter han følgende: Han var en herlig, smuk ung jyde fra Thyholm-egnen, dannet og veltalende, så åbenhjertig og indtagende, som man kun kan være i hans hjemegn. Til Achton Friis sagde mølleren: »Tiderne er elendige, for os som for mange andre, møllen går snart ikke mere. Men vi klamrer os til dette sted for dets skønheds skyld, skønt mange anser os for at være gale. Jeg har lagt mig efter kartoffeldyrkning i større stil i stedet for korn. Bare det går, så vi kan blive her!«
Imidlertid var indtægterne fra kartoffelavl såvelsom fra det lille røgeri, der tidligere var blevet indrettet i gårdens vestlænge, utilstrækkelige til at rette op på de dårlige økonomiske forhold, og i 1935, da Christian Sørensen ikke mere kunne klare de udestående fordringer, overdroges møllen ved et fogedudlægsskøde til gårdejer Peter Jensen i Davinde. Denne afhændede i 1942 møllens daværende jordtilliggende til Thorkild Frandsen,[32] mens selve møllegården som nævnt i artiklens indledning erhvervedes af Landbygningsmuseet, Den fynske Landsby.
Noter
- ^ Kancelliets Brevbøger 1584-1588. Livsbrev for Jomfru Margrette Skougaardt, s. 240. Jacob Madsens Visitatsbog ved A.R. Idum 1929, s. 58.
- ^ Aasum Herreds Tingbog 1645-48. Ved Aksel E. Christensen og Troels Dahlerup. Rosenkilde og Baggers Forlag, Kbh. 1956-61, s. 284.
- ^ Odense Amtsstue. Matrikel for Bjerge-, Lunde-, Odense-, Skam- og Aasum herreder 1718.
- ^ Sanderumgaards godsarkiv. Register til fæsteprotokol 1719-1874.
- ^ Danske Møller. Niels Meyn. Erhvervsforlaget for Haandværk, Handel og Industri. Kbh. 1934, s. 316.
- ^ Schack. Revision og Fortsættelse af Hofmans Fundatssamling. Bd. 5, Kbh. 1841, s. 175-77.
- ^ Vindinge – Bjerge – Aasum herredsfogedarkiv. Skøde- og panteprotokollen 1738-93. Fol. 177b.
- ^ Sanderumgaards godsarkiv. Jordebog 1783. Folketællingen 1787.
- ^ Sanderumgaards godsarkiv. Skifteprotokol 1786-1829, bd. 2. Skifte efter Petter Jacobsen Brochmann, 14/8 1789.
- ^ Sanderumgaards godsarkiv. Skifteprotokol 1786-1829, bd. 2. Skifte efter Jacob Brochmann, 30/11 1803.
- ^ Odense branddirektørs arkiv (landet). Brandtaksationsprotokol for Aasum herred A 1800-1838, s. 21.
- ^ Bjerge – Aasum herredsfogedarkiv. Skøde- og panteprotokollen 1820-24. Fæstebrev for møller Johan Petersen i Davinde, fol. 354.
- ^ Kirkebog for Davinde sogn. Nr. 1.
- ^ Danske Slotte og Herregårde. Red. Aage Roussel. Bd. 7, s. 191-92.
- ^ Bjerge – Aasum herredsfogedarkiv. Skøde- og panteprotokollen 1828-31.
- ^ Odense branddirektørs arkiv (landet). Brandtaksationsprotokol for Aasum herred A 1800-1838. Sag nr. 321-8, s. 391.
- ^ Arkiv anf. under pkt. 16. Brandtaksationsprotokol for Aasum herred B 1838-55. Sag nr. 464-3, s. 124.
- ^ Anf. under pkt. 17. Sag nr. 610-1, s. 292.
- ^ Bjerge – Aasum herredsfogedarkiv. Skøde- og panteprotokollen 1843-48, fol. 395 f.
- ^ Bjerge – Aasum herredsfogedarkiv. Domprotokol (civile sager) 1835-45. Sag nr. 39. Underretsdom i sagen møller Johan Petersen af Davinde contra gårdmand Anders Hansen ibd.
- ^ Udskrift af domprotokol for Den kongelige Lands- Over- samt Hof- og Stadsret i København. Privateje.
- ^ Regulativ for Oprensning og Vedligeholdelsen af Veirup-Bullerup Aae i Bjerge og Aasum Herreder i Odense Amt, forfattet i Henhold til Anordningen af 29de Juli 1846.
- ^ Kirkebog for Davinde sogn. Nr. 5.
- ^ Bjerge – Aasum herredsfogedarkiv. Skifteprotokollen 1870-75, fol. 53.
- ^ Kerteminde dommers arkiv. Realregister til Bjerge – Aasum herreds skøde- og panteprotokol. Davinde c. 1885-1939.
- ^ Odense branddirektørs arkiv (landet). Brandtaksationsprotokollen for Aasum herred B 1838-1855. Sag nr. 651-1, s. 341-42 samt sag nr. 667-1, s. 362. Den alm. brandforsikring for landbygninger. Aasum herreds brandforsikringsprotokol 1858-97. Davinde sogn, forsik-ringsnr. 24.
- ^ Bjerge – Aasum herredsfogedarkiv. Skøde- og panteprotokollen 1877-79, fol. 502 f.
- ^ Den alm. brandforsikring for landbygninger. Odense herreds opmålingsprotokol 1876-89.
- ^ Oplysning fra gdr. Johannes Henriksen, Davinde.
- ^ Bjerge – Aasum herredsfogedarkiv. Skøde- og panteprotokollen 1890-92, fol. 576-77.
- ^ Kerteminde dommers arkiv. Realregister til Bjerge – Aasum herreds skøde- og panteprotokol. Davinde c. 1885-1939.
- ^ Oplysning fra Tinglysningskontoret, Tigergården, Thomas B. Thrigesg., Odense.